PROJECT

CB 1094

Big Boys Toy Shed

TIMBER FRAMED SHED

2

752

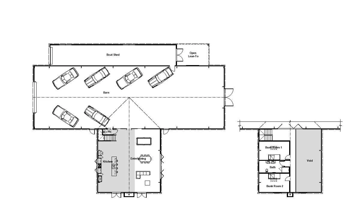
Design features

  • Combination big toy shed & living

  • Mezzanine

  • Raked ceilings

  • Internal LVL portals with ply gussets

  • Barn doors

The floor plan

Features:

  • Bathrooms: 1.5

  • Bed/bunk rooms: 2

  • Floor area: 672m2

  • Mezzanine: 80m2

Talk to us about your project

GET THE LOOK

Materials used

  • Joinery: First Doors & Windows - Ebony

  • Spouting: Marley Typhoon - Black

  • Cladding: Bandsawn Plywood & Cover Battens

  • Roofing: Colorsteel Endura - Ebony

Auckland